所有者:信仰(呢称); 发布时间:2018-01-08 05:39:00; 更新时间:2023-05-14 18:50:38
阅读所需积分:0;
简介:西门子PLC S7-300接地规范
接地的作用——为防止人身遭受电击,防止设备和线路遭受损坏,预防火灾,防止雷击,防止静电损害和保障系统正常运行。
S7-300 PLC是西门子应用最多的PLC产品,其他系列的PLC系统的特性与S7-300PLC产品均类似,因此介绍的接地规范适用于所有PLC系列。
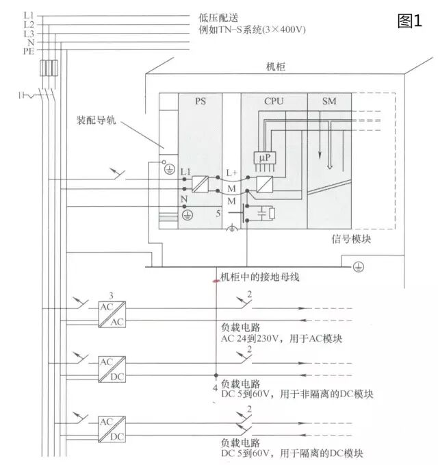
S7-300 PLC的供电及接地原理图,如图1所示。

电源模板(PS307)的接地要求
供电均采用220V/120V交流电源,注意电源需要连接PE线。电源模板输出为CPU及模板提供DC 24V电源。如图2所示。

注意:如果将M和L+端子的极性接反,则CPU的内部熔丝便会熔断。始终将电源模块的M和L+端子与CPU的这两个端子互连。
CPU的接地连接
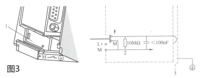
1.CPU 31X接参考地电位
在CPU的电源端子处,插着一个滑动金属片,将该滑动金属片推进去时,DC 24V的M端将通过该滑动金属片与CPU的安装导轨相连,通过导轨实现接地,所有从M来的干扰电流都可以被释放至接地导线/地,如图3所示。

默认情况下,滑动金属片都是推进去的。
因此,当安装具有接地参考电位的S7-300时,不要拔出接地滑动触点。
实际设备中如图4所示。
![]()
2.CPU 31X浮地系统
如果系统的“地”不干净,或者希望将系统做成浮地的,则可以将该金属滑动片撬出,此时M和导轨分开,系统与“地”是不直接相连的,而是通过RC回路进行隔离连接的。如图5所示。

注意:应在导轨上安装设备之前首先设置未接地参考电位。如果已经安装并且用导线连接了CPU,则在拔出接地滑动触点之前可能不得不断开MPI接口。
实际设备中如图6所示。

IO模板的接地要求
1.数字量模板
S7-300系列的数字量输入/输出模板并不需要特殊额外的接地处理,只是对于提高系统EMC特性来讲,需注意以下几点:
数字量输入/输出的导线长度要求:1000m屏蔽线,600m非屏蔽线。
屏蔽电缆处理屏蔽层时请注意:始终使用金属夹夹住编织带屏蔽层。保证大面积的接触屏蔽层,并提供适当的接触压力。
图7显示了使用电缆夹安装屏蔽电缆的几种处理方式。

实际的安装可参考图8所示。

而数字量输出模块有时需进行抑制保护。但由于S7-300数字输出模块内部集成了浪涌抑制器,因此对于电感设备来讲,仅在下列情况之下才需要附加的浪涌抑制设备:
SIMATIC输出回路可以用外部的设备(如继电器触点)来切断;
如果感性负载不由SIMATIC模块控制。
①DC线圈
采用二极管或齐纳二极管可以抑制直流电源驱动的线圈所产生的浪涌电压,如图9所示。

图10是直接接触器上增加续流二极管的实际应用。

用二极管或齐纳二极管作抑制器具有下列特点:
可避免开关动作时产生的过电压,齐纳二极管有较高的关断电压;
提高了关断延迟时间(比没有抑制器时高出6~9倍)。由齐纳二极管组成的抑制器的关断比二极管抑制器快。
②AC线圈
用压敏电阻或RC网络可抑制以AC电源驱动的线包含所产生的浪涌电压,如图11所示。

图12是交流接触器上增加压敏电阻和RC回路的实际应用。

用压敏电阻作抑制器具有下列特点:
开关时的过电压的幅度可以被限制,但不能衰减;
浪涌电压陡峭的上升沿仍保持不变;