文章:减速机与电机之间同轴度的调整方法

所有者:信仰(呢称); 发布时间:2017-05-31 01:07:34; 更新时间:2019-04-26 13:33:44

阅读所需积分:0; 

简介:在检修作业中,会遇到很多电机轴与减速机输入轴接手校同轴度问题,为了又快又好地完成这项工作,下面详细讲解同轴度校正方法。

在检修作业中,会遇到很多电机轴与减速机输入轴接手校同轴度问题,为了又快又好地完成这项工作,下面详细讲解同轴度校正方法


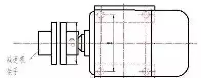
电机与减速机接手校同轴度,大多数情况下,都是减速机不动,校电机。在设备安装时,一般电机底座都会校水平的,所以电机底座的不水平误差是较小的。


因此校同心度时,为了简便和缩短校对时间,只要考虑电机轴与减速机输入轴中心线不等高和电机轴在水平面内的歪斜即可。下面就这种情况,讲解校同轴度的方法。


(即使电机底座水平误差稍偏大,造成接手上、下开端稍超标,即电机不水平,也可在精校时,微调纠正,因此可先不考虑)



步骤一:目测和用钢皮尺比对接手前、后边,初步校正。



如图1,俯视图。

目的:电机、减速机接手前、后初步对齐,并减少开端误差,为下一步打百分表校电机中心高,减少误差。

初步校正后的俯视图,如图2。


图1

图2


步骤二:主视图,如图3,校对电机接手中心线与减速机接手中心线等高。


初步校正后的主视图,如图3。

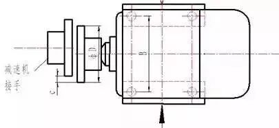
图示安装百分表,旋转减速机接手一圈,记下百分表在上、下两点处读数(若减速机旋转不方便,则把磁座装在电机接手上,旋转电机轴一圈),计算百分表上、下两点的读数差ΔL1,然后,在电机四个地脚螺丝处,同时增加ΔL1/2+(0.10~0.15)厚垫片,其中0.10~0.15mm为经验值,该经验值是补偿打百分表时,电机地脚螺丝未紧固造成的。

垫完垫片后,如图4。


图3

图4


在刚性接手或接手补偿性能差的情况下,且设备高速运转,减速机或轴承座运行与停止状态温度相差较大的场合,在加垫片时,还要根据经验或计算减速机或轴承座运行时,因温度的升高,导致座子升高,要把这个升高量也加上。


步骤三:俯视图5,电机接手前、后方向校正(校开端)。


在垫垫片过程中,电机相对于减速机接手会产生前、后方向的歪斜和错位,如图5。


图5

图6


首先用钢皮尺把接手前、后对齐,对齐后的接手如图6。用块规或游标卡尺,测接手前、后开端,根据相似三角形原理,计算h2=(b2-b1)A/∮D,电机F点处不动,按图示E点处用力缓慢移动电机,读百分表数值,到百分表指针压缩h2后,停止移动。

移动完后,见图7。


图7



步骤四:重新打百分表,测接手开端,确认电机、减速机接手同轴度,是否在允许范围内。一般情况下会在许可范围内。若在,则同轴度校对全部结束。


若不在,也只是微调。若接手上、下开端不在允许范围内,则电机接手在垂直方向要校水平。见图8。用块规或游标卡尺,测接手上、下开端,根据相似三角形原理,计算h1=(a2-a1)A/∮D,在E点处垫h1后,见图9。


图8

图9


若接手前、后未对齐,则可按照百分表前、后两点读数差ΔL2的一半,平移电机即可,见图10。平移后见图11。至此,同轴度校对全部结束。


图10

图11